|
Credit cards accepted

| For more information
or questions please contact us by phone, mail or send us an
Email |
|
|

|
|
|
|
| |
Pontoon
Boats - Products and Accessories
|
|
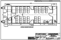
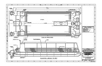
Cad Drawings
Drawings:
If you need approved drawings for your application
U-Fab Boats can have approved cad
drawings produced by ISO certified marine architects
such as
Fleetway Inc.
or a company of your choosing. Drawings can also be
approved by Canada Transport and U.S. Coast Guard.
Fleetway Inc.:
When it comes to
quality,
Fleetway
has always been a leader among companies serving the
marine industry. The company was one of the first to
adopt an ISO 9001 certified Quality System, which
has been in place since 1996. Clients who choose
Fleetway as their solutions partner have the added
benefit of knowing that our work will meet the
industry’s most rigid quality standards
Benefits of
Partnering:
Designing the best commercial work boat or passenger
boat. In order to have the best designed commercial
work boat or passenger boat, its important that the
client, U-Fab Boats, the Plant (Hewitt
(Brockville) Ltd)
and engineers work together to manufacture and
produce a product that will not only do the job but
go beyond the minimum requirements. Knowing our
clients needs is important to us and with our
knowledge and the support staff we can produce a
superior product.
|
 |
click
picture for larger view |
click
picture for larger view |
|
click
picture for larger view |
click
picture for larger view |
|
We deliver high quality workmanship,
on time performance and competitive prices. When you need a
commercial pontoon "yesterday" U-Fab Boats will
work to get your project, on time and on budget. All of our
products are warranted to be free from defective
workmanship.
|
|
|
|
|
| |
| |
U-Fab Boats
459 County Road 29,
Smiths Falls, Ontario, K7A 4S5
Tel.:(613) 283-1888 Fax: (613) 205-0885
Sales Office Hours: Open Mon. to Fri. 9am to 5pmU-Fab Boats
All Rights Reserved |
 |
|
|
|